2019年6月6日,國家工信部正式發放5G商業牌照,5G手機爭奪戰愈演愈烈。3D玻璃熱度未減,3.5D玻璃就已露出尖尖角。
在5G通訊技術中,采用的波長是比目前4G通訊網絡采用的厘米波更短的毫米波(1mm~10mm),且峰值速率高達20Gbps,也就是基于24GHz到52GHz頻率范圍的超大帶寬,這段頻譜的電磁波波長大部分(30GHz~52GHz)都是毫米級別的,因此也叫毫米波mmWave。
毫米波科普:我們以30GHz來算,根據光速=波長x頻率公式計算:


電磁波有一個顯著的特點:頻率越高,能使用的頻率資源越豐富 ,能實現的傳輸速率就越高。波長越短,越趨近于直線傳播(繞射能力越差),而頻率越高,在傳播介質中的衰減也越大,信號功率衰落快,穿透性弱。
5G時代,移動通信使用極高頻,基站的傳輸距離大幅度縮減,基站的覆蓋范圍也將大幅減少。為保證用戶無論在哪里,都能獲得一樣的用戶體驗,基站的密度比原來大。
如何處理毫米波的通訊信號傳輸也成了5G的一項關鍵技術。為了處理好信號收發的天線設計,5G通訊技術中專門設立一項名為高階Massive MIMO的信號工況處理機制,即基站與手機之間進行多對的信道并行通信,265根天線,信號垂直發射,方向性極強。每一對天線都獨立傳送一路信息,經匯集后成倍提高5G通訊網絡的通訊信號處理速率。

各大手機廠商積極的進行5G手機的研發。在手機材質上,金屬機殼對信號(電磁波)的吸收性很強,將會削減5G的信號傳輸,握機姿勢對手機信號有一定的遮擋作用。在材料備選上,共有玻璃、氧化鋯陶瓷、復合材料這三種材料“逐鹿5G”,但是,全塑料外殼逐漸成為過去時,復合材料也有顯得不夠“高大上”的短板。
就當下而言,3.5D玻璃對手機的射頻信號屏蔽非常小,能獲得更好的5G網絡通訊信號,同時解決天線布置空間不足的問題。此外,玻璃能解決金屬殼機身燙手的問題,給用戶高級的視覺效果和手感。外加無線充電等技術在手機市場的加速滲透,玻璃成硬件設備背板材料的熱選,各大面板廠商紛紛在手機玻璃上大做文章。

2019年vivo向媒體展示了極簡一體化的手機——vivo APEX 2019,一體的全新設計概念,無開孔的機身設計,打破目前手機外觀缺乏創新,同質化日益嚴重的情況,一石激起三層浪。3.5D玻璃及瀑布屏的出現有望在手機行業掀起一股新的面貌,打破智能手機市場疲軟的局面。而從vivo、華為、魅族等終端的布局來看,終極一體化設計將大有可為,可以說,3.5D玻璃有望成為新技術熱點,率先在5G時代搶占到先機。
3.5D可以理解為3D的更高形態,相比于3D玻璃,3.5D玻璃具有更小的彎曲半徑,即輪廓曲面彎度接近90度,放在鏡面桌面上,正好形成一個完整的機身輪廓的截面。
由此衍生出一個新的概念“瀑布屏”,通過新技術,把前后兩塊3.5D玻璃融合在一起,側邊近似垂直的弧邊替代掉了所謂三明治設計的中框,并取消手機中框及機身開孔,屏幕由正面一路往外延伸到本來應該是中框的位置,形成整體全玻璃手機的方案,稱之為瀑布屏。

▲要保證3.5D玻璃無縫銜接,少不了對玻璃全方位無死角的精密測量。
與3D玻璃相比,3.5D蓋板玻璃的加工技術更加困難。據了解,工序的增加 ,工藝的難度,都會導致良率下降,增加成本;在實際生產中,3.5D玻璃制造中的幾道主要工序:開料、精雕、拋光熱彎、化學強化,需要用到精準尺寸測量設備。
01開料檢測
開料檢測只需要檢測產品的長寬尺寸與厚度,難度較小,使用影像測量儀進行檢測,從源頭嚴格把控上品質。
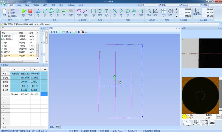
METUS 測量界面

02精雕磨邊
精雕磨邊這道工序對于3.5D玻璃生產十分重要,精度要求高。使用大尺寸一鍵式測量在現場檢測,只需要把測量產品放在CCD檢測范圍內,5S即可完成檢測,大幅度提升測量效率,可編程能力強,是尺寸全檢工序的優質方案。
03熱彎及化學強化
熱彎工藝會受到石墨模具,熱彎機性能、模具及設備磨損等多種元素的影響。化學強化后曲面曲率會有細微變化且不可精確控制。這些問題導致成品率很低,這給檢測增添了“重頭戲”。
針對3.5D熱彎后的檢測要求,推薦GLASS機型,采用CWS白光測頭系統:既能滿足輪廓的檢測,也能滿足要求極高的高度要求。
輪廓度檢測
CWS非接觸式共聚焦白光傳感器,采用色階共聚焦白光探頭,可以準確完成輪廓度的測量,對于3.5D玻璃邊沿較大角度的位置,光譜共焦位移傳感器可以獲得更大可測量區域。
產品特點及測量能力
1.采用非接觸采點方式,測量全程不產生碰觸,不會造成接觸形變:
2.同時具備三坐標空間測量功能,可以準確完成空間
3.具有連續掃描功能,無需逼近回退,效率更高。

弧高檢測
針對3D玻璃的弧高這一測量難點,避開接觸式會在測量過程中產生觸測力,選用點激光進行掃描點或線,無需接觸,無需夾持性治具,即可快速得出數據與標準模型對比。
CWS的點密度最高是0.005(毫米)一個點,超高的點密度可以保證準確的提取起升位的最高點。如圖所示,在提取輪廓度時即可得出弧高,既提高效率也保證了精度。


輪廓、弧高(高度)檢測過程中的軟件界面
面對該環節高檢測效率、高精度以及細致程度要求。通過思瑞三次元三坐標測量機,搭配SP25(打點+掃描)/TP200打點,配上專用治具。嚴格管控3.5D玻璃手機后蓋及屏幕的曲面內外的弧度及偏差、輪廓度。
接觸式檢測優點
1.數據穩定,重復性好;多臺設備之間的相關性可以保證
2.坐標建立準確;可以根據玻璃的檢測要求選擇不同類型的測針
3.相對其他類型測量方案,單位時間得到的數據量大

冶具改善方向:將人工頂塊替換為壓力計式定壓,確定一個保證變形量的壓力極值,將解決此類問題。
同類方案還可用于3D玻璃的周邊產品,以及測量方法類似的工件例如:手機鋼化膜、石墨模具、汽車中控蓋板、批量不規則曲面產品。
思瑞測量GLASS三坐標測量機是一款非接觸式光學掃描三坐標測量機,采用了全自動三坐標測量機橋式機構架及掃描技術,輕松完成復雜零件高精度測量與數據采集,滿足多樣測量需求。
思瑞測量是全球專業的計量解決方案制造商,產品涵蓋三坐標、三坐標測量機、三坐標測量儀、三坐標測量、三次元、光學測量、三坐標升級、三坐標測量服務、及逆向工程等領域,全方位解決復雜測量難題!
返回頂部